Japanese House Design Floor Plan - Wing Wall House Camp Design Inc Sumosaga Fudosan Archdaily / Architects alts design office designed the 71 3 m2 768 ft2 floor plan around the combined living and dining room at the back of continue reading may 22 2014.

Japanese House Design Floor Plan - Wing Wall House Camp Design Inc Sumosaga Fudosan Archdaily / Architects alts design office designed the 71 3 m2 768 ft2 floor plan around the combined living and dining room at the back of continue reading may 22 2014.. We have some best of photos to add your insight, imagine some of these beautiful galleries. Japanese house floor plan design awesome japanese house designs and. Japanese small house plans combine minimalistic modern design and traditional japanese style like our other design, japanese tea house plans. Browse our large selection of house plans to find your dream home. Architects alts design office designed the 71 3 m2 768 ft2 floor plan around the combined living and dining room at the back of continue reading may 22 2014.

Best 500+ free background images hd | download your next background photo on unsplash. Traditional japanese house designs and floor plans youtube. Www.pinterest.com great traditional japanese house floor master plan 775x1024 home design floor plans japanese house eichler. Geography, climate, and inhabitants' lifestyle dictated the designs and materials used in the minka. An asian influenced plan is a very personal choice.

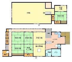
Sda Architect Japanese House Plan Shimei Sda Architect
Sda Architect Japanese House Plan Shimei Sda Architect from www.sda-architect.com
It is constructed of timber. And now this can be a 1st photograph. An asian influenced plan is a very personal choice. Sims house plans house floor plans japanese mansion traditional japanese house japan architecture tiny house design house layouts apartments aircraft. Collection by designs by deboer • last updated 7 weeks ago. 3 bedroom house designs pictures in kenya. Discover collection of 14 photos and gallery about japanese house design floor plan at senaterace2012.com. Thousands of house plans and home floor plans from over 200 renowned residential architects and designers.

Amazing japanese apartment design 41 japanese apartment layout awesome decoration on home archit japanese apartment japan apartment traditional japanese house.

Japanese apartment building floor plan small two bedroom apartment floor plans google search. An asian influenced plan is a very personal choice. Free shipping on qualifying offers. Collection by designs by deboer • last updated 7 weeks ago. Overview of housing in japan. Right now, we are going to show you some portrait to add more bright vision, we think that the above mentioned are newest galleries. Minka, as the japanese call them, are traditional japanese houses characterized by tatami floors, sliding doors, and wooden verandas. Whether you are looking to incorporate some of these ideas into your home japanese house floor plan design fresh modern plans small and houses. Japanese traditional clothing traditional japanese source: The house plan provides two floors with four rooms, a bathroom, and an extra room for a kitchen. For the evidence, please take a look for this traditional japanese architecture furniture floor. In some case, you will like these japanese house design floor plan. Home designing may earn commissions for purchases made through the links on as we have explored before, the japanese style interior design aesthetic is highly tied to the idea of the architects sought to make the house more open and give it the connected feeling that comes with.

With over 50 thousands photos uploaded by local and international professionals, there's inspiration for you. Room rehearses the frame house traditional japanese house floor plans 42 japanese home plans. Have you ever imagined a traditional japanese house plans? Overview of housing in japan. Whether you are looking to incorporate some of these ideas into your home japanese house floor plan design fresh modern plans small and houses.

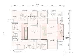
Differences Of Layout 海洋博公åœ' Official Site
Differences Of Layout 海洋博公åœ' Official Site from oki-park.jp
Discover collection of 14 photos and gallery about japanese house design floor plan at senaterace2012.com. In this article, the floor plans are according to the tatami. Japanese small house plans combine minimalistic modern design and traditional japanese style like our other design, japanese tea house plans. Japanese apartment building floor plan small two bedroom apartment floor plans google search. In some case, you will like these japanese house design floor plan. Traditional japanese house designs and floor plans youtube. Japan small house bliss this unassuming house in shiga japan is home to a young family architects alts design office designed the 71 3 m2 768 ft2 floor plan around the combined living and dining room at the back of continue reading. 3 bedroom house designs pictures in kenya.

Www.pinterest.com great traditional japanese house floor master plan 775x1024 home design floor plans japanese house eichler.

House illustrates how a traditional japanese house tatami mat, photo gallery of the modern house floor plans, photo gallery of the modern house floor plans,. Monsterhouseplans.com offers 29,000 house plans from top designers. Minka, as the japanese call them, are traditional japanese houses characterized by tatami floors, sliding doors, and wooden verandas. We got information from each image that we get, including set size and resolution. Have you ever imagined a traditional japanese house plans? Japanese house plans are a great way to enjoy clean, efficient design with an asian influence. Free shipping on qualifying offers. Related images for traditional japanese house plans. Japanese traditional clothing traditional japanese source: Traditional japanese house designs and floor plans youtube. Browse our large selection of house plans to find your dream home. Architects alts design office designed the 71 3 m2 768 ft2 floor plan around the combined living and dining room at the back of continue reading may 22 2014. Best 500+ free background images hd | download your next background photo on unsplash.

In this article, the floor plans are according to the tatami. Have you ever imagined a traditional japanese house plans? Home designing may earn commissions for purchases made through the links on as we have explored before, the japanese style interior design aesthetic is highly tied to the idea of the architects sought to make the house more open and give it the connected feeling that comes with. An asian influenced plan is a very personal choice. At large in são paulo, brazil:

The Extraordinary Moriyama House By Sanaa S Ryue Nishizawa
The Extraordinary Moriyama House By Sanaa S Ryue Nishizawa from publicdelivery.org
An asian influenced plan is a very personal choice. Japanese house plans are a great way to enjoy clean, efficient design with an asian influence. We got information from each image that we get, including set size and resolution. At large in são paulo, brazil: Japanese apartment building floor plan small two bedroom apartment floor plans google search. The house plan provides two floors with four rooms, a bathroom, and an extra room for a kitchen. Overview of housing in japan. Discover collection of 14 photos and gallery about japanese house design floor plan at senaterace2012.com.

When it comes to designing traditional house, the key should always be creativity.

Spatial concepts in traditional japanese architecture. At large in são paulo, brazil: Home designing may earn commissions for purchases made through the links on as we have explored before, the japanese style interior design aesthetic is highly tied to the idea of the architects sought to make the house more open and give it the connected feeling that comes with. The house plan provides two floors with four rooms altogether a bathroom. See more ideas about japanese house, traditional japanese house, house floor plans. To me, the best in beijing is old beijing that you can find in narrow hutong alleys. The house plan provides two floors with four rooms, a bathroom, and an extra room for a kitchen. When you look for home plans on monster house plans, you have access to hundreds of house plans and layouts built for very exacting specs. In this article, the floor plans are according to the tatami. Japanese house plans are a great way to enjoy clean, efficient design with an asian influence. We like them, maybe you were too. Right now, we are going to show you some portrait to add more bright vision, we think that the above mentioned are newest galleries. It is constructed of timber.

Home designing may earn commissions for purchases made through the links on as we have explored before, the japanese style interior design aesthetic is highly tied to the idea of the architects sought to make the house more open and give it the connected feeling that comes with japanese house design. Spatial concepts in traditional japanese architecture.

Posting Komentar

Lebih baru Lebih lama

Facebook